Lo lắng về nguy cơ hỏa hoạn tại các tòa nhà cao tầng là điều không hiếm gặp. Thống kê từ năm 2023 đến tháng 6/2024 cho thấy hàng trăm vụ cháy nổ đã xảy ra tại các khu chung cư, cao ốc, gây thiệt hại nghiêm trọng về người và tài sản. Bạn có từng lo lắng về việc bị mắc kẹt trong đám cháy tại một tòa nhà cao tầng?
Thảm kịch cháy chung cư vừa qua đã gióng lên hồi chuông cảnh báo về tầm quan trọng của an toàn phòng cháy chữa cháy. Hệ thống tăng áp cầu thang và hút khói hành lang chính là giải pháp tối ưu để bảo vệ bạn và gia đình trước những tình huống khẩn cấp. Hãy cùng Trần Gia M&E tìm hiểu về hệ thống này để đảm bảo an toàn cho ngôi nhà của bạn.
Tài liệu được trích dẫn và tham khảo từ Trung Tâm Đào Tạo Cơ Điện – hvacdesign.vn
I. Hệ thống tăng áp cầu thang và hút khói hành lang – bù gió: Nâng tầm an toàn cho tòa nhà của bạn
1. Hệ thống tăng áp cầu thang:
a/ Vai trò:
- Tạo áp suất dương trong buồng thang bộ, ngăn chặn khói xâm nhập, đảm bảo an toàn cho người di chuyển khi có cháy xảy ra.
- Giúp người di chuyển dễ dàng hít thở trong môi trường khói bụi, tăng khả năng thoát hiểm.
b/ Phân loại:
- Thang bộ không nhiễm khói N1: Không cần thiết kế hệ thống tăng áp.
- Tăng áp buồng thang bộ N2 và N3: Tạo áp suất dương cho buồng thang.
- Tăng áp khoang đệm thang bộ N2 và N3: Tạo áp suất dương cho khoang đệm.
- Tăng áp sảnh chờ thang máy và thang máy chữa cháy: Đảm bảo an toàn cho khu vực di chuyển.
2. Hệ thống hút khói hành lang – bù gió:
a/ Vai trò:
- Hút khói ra ngoài nhanh chóng, cung cấp khí tươi, đảm bảo thông thoáng cho hành lang thoát hiểm khi có cháy.
- Giảm thiểu nồng độ khói trong khu vực, giúp người di chuyển dễ dàng quan sát và di chuyển an toàn.
b/ Phân loại:
- Hệ thống cơ chế cưỡng bức: Sử dụng quạt hút tạo lực hút.
- Hệ thống cơ chế tự nhiên: Khói tự thoát qua các lỗ mở theo quy luật vật lý.

II. Thiết kế hệ thống tăng áp cầu thang
1. Nguyên lý hoạt động:
- Sử dụng quạt tăng áp để cung cấp gió vào buồng thang, tạo áp suất từ 20 – 50 Pa.
- Khi áp suất vượt quá 50 Pa, van xả áp sẽ mở ra để duy trì áp suất không gian điều áp luôn nhỏ hơn 50 Pa.

2. Phân loại hệ thống tăng áp cầu thang:
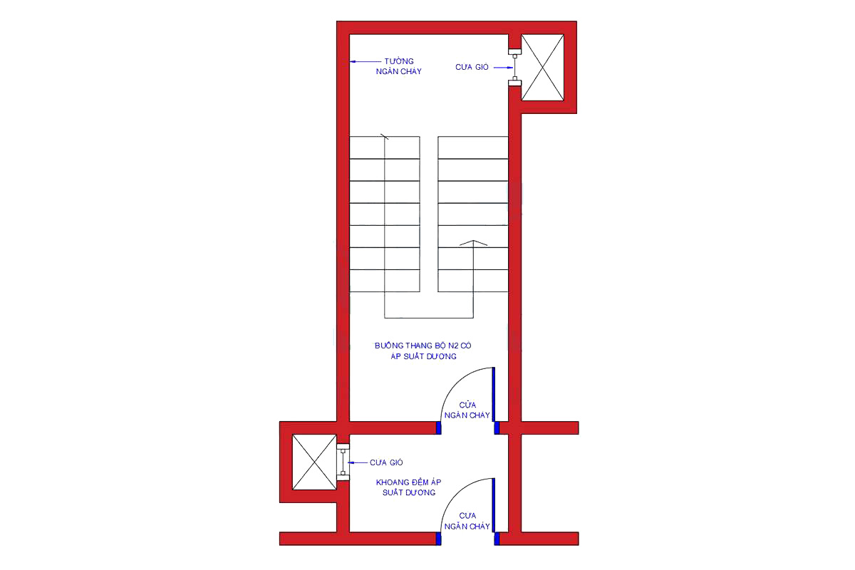
- Tăng áp buồng thang bộ N2: Áp dụng cho các tòa nhà có chiều cao từ 15m đến 60m.

Hình 3: Thang bộ không nhiễm khói loại N2 - Tăng áp khoang đệm thang bộ N2 và N3: Áp dụng cho các tòa nhà có chiều cao từ 60m trở lên.

Hình 4 : Buồng thang bộ và khoang đệm không nhiễm khói loại N3 
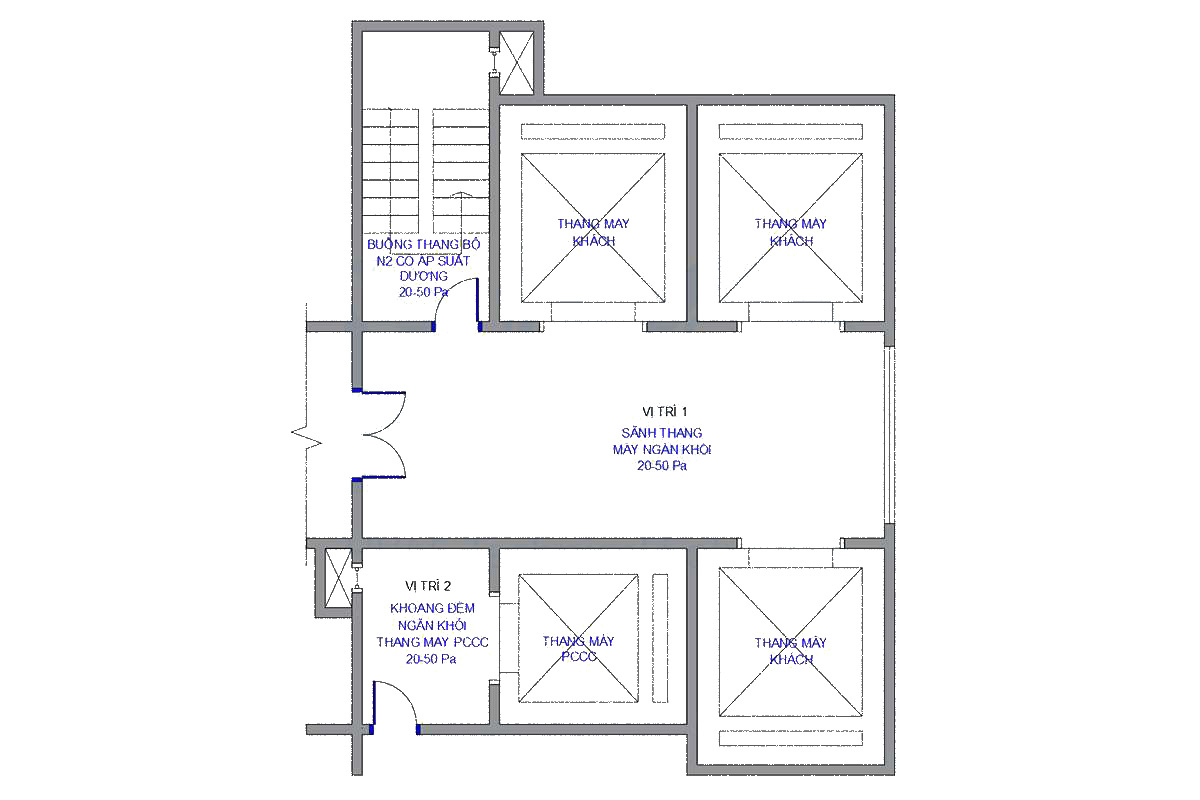
Hình 5 : Khoang đệm của thang bộ không nhiễm khói loại N2 - Tăng áp sảnh chờ thang máy (tại các tầng hầm, bán hầm đỗ xe): Áp dụng cho các tòa nhà có nhiều tầng hầm hoặc bán hầm đỗ xe. (ở vị trí 1 – Hình 6)
- Tăng áp khoang đệm thang máy chữa cháy: Áp dụng cho các tòa nhà có thang máy chữa cháy. (Ở vị trí 2 – Hình 6)

Hình 6: Tăng áp sảnh chờ thang máy và khoang đệm thang máy chữa cháy - Tăng áp giếng thang máy khách (khi không thể tăng áp sảnh thang máy): Áp dụng cho các tòa nhà có giếng thang máy khách riêng biệt. (Xem hình minh họa tại vị trí 3)

Hình 7: Tăng áp giếng thang máy - Tăng áp các khoang đệm, sảnh khác theo Quy chuẩn QCVN 06:2022/BXD mục D10: Áp dụng cho các khoang đệm, sảnh khác theo yêu cầu của Quy chuẩn QCVN 06:2022/BXD.
3. Lưu ý quan trọng
- Lưu lượng không khí cấp cần đảm bảo áp suất dư từ 20 Pa đến 50 Pa.
- Số cửa mở đồng thời khi cháy cho từng trường hợp không gian tăng áp cụ thể.
- Vận tốc gió tính toán qua cửa mở không nhỏ hơn 1.3m/s.
- Vật liệu chế tạo đường ống và kênh dẫn không khí phải không cháy, đảm bảo giới hạn chịu lửa El theo quy định.
- Vị trí cửa lấy gió phải đảm bảo khoảng cách tối thiểu cho phép so với cửa xả khói.
III. Thiết kế hệ thống hút khói hành lang – bù gió
1. Nguyên lý hoạt động:
- Sử dụng quạt hút khói và van bù gió để luân chuyển khí.
- Khi có cháy xảy ra, quạt hút khói sẽ hoạt động, van MFD tại tầng cháy sẽ mở ra để hút khói ra ngoài,
- Đồng thời van bù gió sẽ mở ra để cung cấp khí tươi vào khu vực.

Hình 8: Nguyên lý hệ thống hút khói hành lang hoặc phòng và bù gió
2. Phân loại hệ thống hút khói hành lang – bù gió:
- Hệ thống cơ chế cưỡng bức: Sử dụng quạt hút để tạo lực hút khói ra ngoài.
- Ưu điểm: Hiệu quả cao, hoạt động độc lập không phụ thuộc vào điều kiện môi trường bên ngoài.
- Nhược điểm: Chi phí đầu tư cao hơn, cần bảo trì định kỳ.
- Hệ thống cơ chế tự nhiên: Khói tự thoát qua các lỗ mở trên tường hoặc mái nhà theo nguyên lý đối lưu.
- Ưu điểm: Chi phí đầu tư thấp, không cần bảo trì.
- Nhược điểm: Hiệu quả phụ thuộc vào điều kiện môi trường bên ngoài như gió, nhiệt độ
3. Lưu ý quan trọng:
- Xác định khoang cháy và chiều cao PCCC để phân chia hệ thống thông gió chính xác và an toàn.
Theo Quy chuẩn QCVN 06:2022/BXD – Quy chuẩn kỹ thuật Quốc gia về An toàn cháy cho nhà và công trình tại 1.4.9 thì chiều cao PCCC (không tính tầng kỹ thuật trên cùng) xác định như sau:
– Bằng khoảng cách lớn nhất tính từ mặt đường cho xe chữa cháy tiếp cận đến mép dưới của lỗ cửa (cửa sổ) mở trên tường ngoài của tầng trên cùng (Hình 10 minh họa ở trường hợp 1)
– Bằng một nửa tổng khoảng cách tính từ mặt đường cho xe chữa cháy tiếp cận đến mạt sàn và đến trần của tầng trên cùng – khi không có lỗ cửa (cửa sổ) (Hình 10 minh họa ở trường hợp 1)

- Vị trí miệng gió hút khói và miệng bù gió đảm bảo theo quy định từ QCVN 06:2022/BXD
- Kích thước lỗ mở thông gió thoát khói trên tường ngoài phải tuân thủ quy định QCVN 06:2022/BXD
- Vật liệu chế tạo đường ống và kênh dẫn không khí phải không cháy, đảm bảo giới hạn chịu lửa El theo quy định.
- Khoảng cách tối thiểu giữa cửa xả khói và cửa lấy gió bù phải đảm bảo theo quy định.
IV. Ưu điểm vượt trội của hệ thống thông gió Trần Gia M&E:
- Đội ngũ kỹ sư giàu kinh nghiệm, đảm bảo hệ thống hoạt động hiệu quả, tuân thủ quy chuẩn kỹ thuật.
- Sử dụng vật liệu cao cấp và phụ kiện chính hãng, đảm bảo độ bền và tuổi thọ.
- Thi công nhanh chóng, quy trình chuyên nghiệp, hoàn thành công trình đúng tiến độ.
- Cung cấp bảo trì định kỳ, giúp hệ thống duy trì hoạt động ổn định, hiệu quả.
- Mức giá hợp lý, tối ưu hóa chi phí cho khách hàng.
V. Dự án tiêu biểu:
- Nhà máy thực phẩm tại Long An: Hệ thống hút khói sự cố PCCC
- Tòa nhà cao cấp tại TP Bảo Lộc: Hệ thống tăng áp cầu thang và hút khói hành lang – bù gió.
- Tòa nhà Unionsquare, Đồng Khởi, Q1 : Hệ thống thông gió cơ bản
- Nhà máy sản xuất đế giày tại Bến Lức: Hệ thống thông gió công nghiệp.
- Khách sạn lớn tại TP Đà Lạt: Hệ thống thông gió hút khói hành lang – bù gió.
VI. Liên hệ ngay để được tư vấn miễn phí:
- Website: https://trangiame.vn/
- Hotline: 0933.778.666
- Mail: trangiame.vn@gmail.com
Trần Gia M&E – Uy tín – Chất lượng – Hiệu quả
Tài liệu được trích dẫn và tham khảo từ Trung Tâm Đào Tạo Cơ Điện – hvacdesign.vn






